Drilling Holes in Floor Joists: Best Practices and Guidelines

When it comes to installing utilities or structural modifications in a building, drilling holes in floor joists is often unavoidable. However, it is crucial to follow best practices and guidelines to ensure the structural integrity and safety of the building. In this article, we will discuss the importance of proper drilling techniques, the potential risks associated with improper drilling, and the recommended guidelines to follow when drilling holes in floor joists.
One of the key considerations when drilling holes in floor joists is the size and location of the hole. It is important to determine the maximum allowable hole size based on the type and size of the joist, as specified by building codes and engineering standards. Additionally, the location of the hole should be carefully planned to avoid compromising the structural integrity of the joist. Generally, holes should be drilled in the center-third of the joist span to minimize the risk of weakening the joist.
In addition to size and location, it is crucial to take into account the spacing between holes. Cutting multiple holes in close proximity can significantly weaken the joist, leading to sagging, cracking, or even structural failure. It is recommended to maintain a minimum distance between holes, which can vary depending on the size and type of the joist. Consulting an engineer or a building professional can provide guidance on the appropriate spacing requirements.
Furthermore, it is important to consider the type of utility or modification being installed when drilling holes in floor joists. For example, if plumbing or electrical lines are being routed through the joists, it is crucial to use protective grommets or sleeves to prevent damage to the utilities and to maintain the structural integrity of the joist. Additionally, fire-blocking measures should be implemented to prevent the spread of fire through drilled holes.
In conclusion, drilling holes in floor joists is a necessary task in many construction and renovation projects. However, it is essential to follow best practices and guidelines to ensure the safety and structural integrity of the building. By considering the size and location of the hole, maintaining appropriate spacing, and using protective measures, builders and contractors can minimize the risk of weakening the joists and ensure a structurally sound and safe building for years to come.
Importance of Drilling Holes in Floor Joists
Drilling holes in floor joists is a common practice in construction and renovation projects. It is important to understand the reasons why drilling holes in floor joists is necessary and how it can be done in the correct manner.
Supporting Services
One of the main reasons for drilling holes in floor joists is to allow for the installation of supporting services such as plumbing, electrical wiring, and HVAC systems. These services are essential for the functioning of a building, and drilling holes in the joists provides a path for them to be installed.
However, it is crucial to plan and coordinate the placement of these holes to prevent any compromise to the structural integrity of the joists. By understanding the load-bearing capacity of the joists and following guidelines for hole placement, it is possible to install these services without weakening the floor structure.
Code Compliance
Drilling holes in floor joists must also comply with building codes and regulations. These codes ensure that the structural integrity of the joists is maintained, while also considering other factors such as fire safety and accessibility.
Code compliance may dictate the maximum size and spacing of holes in floor joists, as well as the required protective measures to be taken. It is important to consult the local building code or seek professional advice to ensure compliance and avoid any potential issues during inspections or in the event of an incident.
Preventing Structural Damage
Drilling holes in floor joists without proper planning and execution can lead to structural damage. The integrity of the joists may be compromised, and the overall stability of the building may be at risk.
When drilling holes in floor joists, it is important to consider factors such as the size and placement of the holes, as well as any additional reinforcement that may be required. Following best practices and guidelines for drilling holes in floor joists can help prevent structural damage and maintain the longevity of the building.
Professional Guidance
To ensure the proper drilling of holes in floor joists, it is recommended to seek professional guidance. Structural engineers, architects, or experienced contractors can provide valuable insights and recommendations based on the specific project requirements and local building codes.
By consulting with professionals, you can ensure that the drilling of holes in floor joists is done correctly, meeting all safety and structural requirements. This can help prevent costly repairs or renovations in the future and ensure the overall safety and integrity of the building.
Conclusion
Drilling holes in floor joists plays a crucial role in the installation of supporting services and adherence to building codes. It is important to understand the importance of proper hole placement, code compliance, and the prevention of structural damage.
Following best practices and seeking professional guidance will help ensure that the drilling of holes in floor joists is done correctly and safely, maintaining the structural integrity and longevity of the building.
Building Codes and Standards

When it comes to drilling holes in floor joists, it is important to follow the building codes and standards set by the local authorities. These codes and standards are put in place to ensure the safety and structural integrity of buildings.
One of the most important codes to consider is the International Building Code (IBC), which provides guidelines for construction practices in most parts of the United States. The IBC specifies the maximum allowable size and location of holes that can be drilled in floor joists.
In general, the IBC allows for small holes to be drilled in floor joists, as long as they do not exceed a certain size and are not placed in certain critical locations. The size and location limits vary depending on the type of joist and the load it carries.
It is also important to consult with a structural engineer or a building inspector to ensure compliance with local codes and standards. They can provide guidance on the specific requirements for drilling holes in floor joists in your area.
Additionally, other standards such as the National Fire Protection Association (NFPA) codes and the American Society for Testing and Materials (ASTM) standards may also come into play depending on the specific situation.
Overall, it is crucial to adhere to the building codes and standards when drilling holes in floor joists to prevent any compromise in the structural integrity of the building. Failure to comply with these codes can result in safety hazards and potential legal consequences.
Structural Integrity and Safety Considerations
1. Introduction
When drilling holes in floor joists, it is important to consider the structural integrity and safety implications. Any modifications made to the joists can potentially weaken the overall structure and compromise its ability to support the load placed upon it. Therefore, it is crucial to follow best practices and guidelines to ensure the ongoing stability and safety.
2. Load-Bearing Capacity
The load-bearing capacity of floor joists is determined by their dimensions, material strength, spacing, and the overall construction of the building. Any alterations or holes drilled in the joists can weaken their load-bearing capacity, potentially leading to structural failure. It is essential to consult a structural engineer or a building professional to determine the maximum permissible size and location of the holes based on the specific requirements of your building.
3. Hole Placement
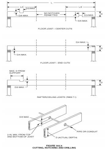
Proper hole placement is critical to maintaining the structural integrity of floor joists. Holes should be located away from the top and bottom edges of the joists, as these areas are subjected to the highest levels of stress. It is recommended to keep holes at least 2 inches away from the edges to ensure the joist’s strength is not compromised.
4. Hole Size
The size of the holes drilled in the floor joists also plays a significant role in maintaining their structural integrity. Larger holes have a greater impact on the load-bearing capacity compared to smaller ones. Best practices suggest that the size of the hole should not exceed one-third of the joist’s depth. For example, if the joist is 12 inches deep, the maximum hole size should be limited to 4 inches in diameter.
5. Reinforcement Techniques
In some cases, it may be necessary to drill larger holes or multiple holes that exceed the recommended size limits. In such situations, appropriate reinforcement techniques should be implemented to mitigate any potential damage to the floor joists. This reinforcement can include adding additional structural members, such as sister joists or engineered wood products, or installing steel plates or brackets to support the modified area.
6. Professional Consultation

Before undertaking any drilling or modifications to floor joists, it is highly recommended to consult a structural engineer or a building professional with expertise in structural integrity. They can assess the specific requirements of your building, provide guidance on hole placement and size, and suggest appropriate reinforcement techniques to maintain the overall structural integrity and safety of the floor system.
7. Monitoring and Maintenance
After any modifications are made to floor joists, it is essential to regularly monitor and maintain the structural elements. Periodic inspections can help identify any signs of damage or weakness that may have occurred due to drilling or other factors. Prompt repairs or reinforcement should be carried out to ensure the ongoing stability and safety of the floor system.
8. Conclusion
Drilling holes in floor joists should be approached with utmost caution to ensure the structural integrity and safety of the building. Adhering to best practices and guidelines, consulting professionals, and employing appropriate reinforcement techniques are crucial steps to minimize any potential risks and maintain the long-term stability of the floor system.
Types of Holes and Their Effects on Floor Joists

1. Circular Holes
Circular holes are the most common type of holes drilled in floor joists. They are typically used for running pipes, wires, or cables through the joists. Circular holes can have a diameter ranging from a few inches to several inches, depending on the needs of the installation.
The effect of circular holes on floor joists largely depends on their size and location. Smaller diameter holes can have minimal impact on the structural integrity of the joists, especially if they are drilled in the center of the joist and do not compromise its top or bottom flange. However, larger or off-center holes can weaken the joist, reducing its load-bearing capacity.
2. Notched Holes
Notched holes are created by cutting out a section of the floor joist to accommodate pipes, ducts, or other obstructions. These types of holes are typically larger and more intrusive than circular holes. Notched holes can weaken the joist significantly, especially if they are made close to the ends or edges of the joist.
It is important to properly size and locate notched holes to minimize their impact on the structural integrity of the floor joist. Guidelines and building codes often specify maximum allowable sizes and locations for notched holes in joists.
3. Bored Holes
Bored holes are typically smaller and less intrusive than circular or notched holes. They are created by drilling through the joist without removing any material. Bored holes are often used for running smaller wires or cables through the joists.
While bored holes have less impact on the strength of the joist compared to notched or large circular holes, they can still weaken the joist to some extent. It is important to avoid drilling too many bored holes in a single joist or placing them too close together, as this can compromise the structural integrity of the joist.
4. Effect on Floor Joists
The size, location, and number of holes drilled in a floor joist can have a significant impact on its structural integrity. When holes are improperly sized or located, they can weaken the joist and potentially lead to structural failure or sagging floors.
It is important to follow building codes and guidelines when drilling holes in floor joists. These codes typically specify maximum sizes, locations, and distances between holes to ensure the structural integrity of the joists is not compromised.
If in doubt, it is always recommended to consult with a structural engineer or building professional before drilling any holes in floor joists to ensure the safety and stability of the structure.
Size and Placement of Holes: Best Practices
- When drilling holes in floor joists, it is important to consider the size and placement of these holes to ensure the structural integrity of the joists is maintained.
- The size of the hole should be limited to a maximum of one-third the depth of the joist.
- For example, if the joist is 12 inches deep, the maximum hole size should be 4 inches in diameter.
- Smaller holes are recommended whenever possible, as they have less impact on the strength of the joist.
- It is also crucial to consider the location of the holes in relation to other holes or notches in the joist. When multiple holes are necessary, they should be spaced at least twice the diameter of the largest hole apart.
Additionally, the distance between the edge of the hole and the edge of the joist should be at least 2 inches to maintain structural stability. Placing the hole too close to the edge can weaken the joist and compromise its ability to bear loads.
Here are some best practices to follow when determining the size and placement of holes in floor joists:
- Consult the building code requirements and guidelines for your specific area, as these may vary between regions.
- Consider the load bearing capacity of the joist and the anticipated loads placed upon it. This will help determine the maximum allowable hole size.
- If possible, use smaller diameter holes and fewer holes to minimize the impact on the joist’s strength.
- Plan the placement of multiple holes carefully to maintain the structural integrity of the joist. Space holes at least twice the diameter of the largest hole apart.
- Avoid placing holes too close to the edge of the joist, as this can weaken the joist and compromise its load-bearing capacity.
- When in doubt, consult a structural engineer or a professional contractor for guidance on appropriate hole size and placement.
Following these best practices will help ensure that any holes drilled in floor joists do not compromise the structural integrity of the building and contribute to a safe and durable structure.
Tools and Equipment for Drilling Holes in Floor Joists
Drilling holes in floor joists requires the use of specific tools and equipment to ensure accuracy and safety. Here are some essential tools and equipment you will need:
- Drill: A drill is the primary tool required for drilling holes in floor joists. Choose a reliable and sturdy drill with enough power to handle the size and type of holes you need to make.
- Drill Bits: Different drill bits are available for drilling holes in floor joists, such as spade bits, auger bits, and hole saws. Choose the appropriate drill bits based on the size and type of holes you need to create.
- Protective Gear: Always wear protective gear when drilling holes in floor joists. This includes safety goggles to protect your eyes from flying debris, earplugs to protect your hearing from loud noises, and gloves to protect your hands from sharp edges.
- Measuring Tape: Accurate measurements are crucial when drilling holes in floor joists. Use a measuring tape to mark the locations of the holes and ensure they are placed correctly.
- Level: A level is essential for ensuring that the holes are drilled straight and level. It helps maintain the structural integrity of the floor joists.
- Safety Supports: When drilling holes in floor joists, it is important to have safety supports in place to prevent any accidental collapses. Use temporary supports, such as adjustable jack posts or temporary beams, to ensure that the floor remains stable during the drilling process.
Additionally, it is recommended to consult with a structural engineer or building professional before drilling any holes in floor joists. They can provide guidance on the specific tools and equipment needed for your project and ensure that it complies with building codes and regulations.
Common Mistakes and Challenges in Drilling Holes
When drilling holes in floor joists, it is important to be mindful of certain mistakes and challenges that can arise. By avoiding these common errors, you can ensure the structural integrity of the joists and prevent any potential problems down the line.
1. Incorrect Placement of Holes
- One common mistake is drilling holes too close to the edges of the joists. This can weaken the joist and compromise its load-bearing capacity.
- Another mistake is drilling holes in the bottom flange of an I-joist. This can reduce the strength of the joist and potentially lead to sagging or even failure.
2. Improper Hole Size
- Using the wrong size drill bit is another mistake to avoid. If the hole is too large, it can cause cracks or splits in the joist, reducing its strength and stability.
3. Excessive or Unnecessary Holes
- Drilling too many holes in a single joist or drilling unnecessary holes can weaken the overall structure and compromise its ability to distribute loads evenly.
4. Lack of Reinforcement or Bridging
- Failing to reinforce or add bridging near drilled holes can reduce the joist’s stiffness and cause excessive deflection or sagging.
- Not providing proper reinforcement or bracing for holes near the ends of joists can also result in splitting or failure.
5. Cutting Wires or Pipes
- One challenge of drilling holes in floor joists is the risk of cutting or damaging hidden wires or pipes. It is crucial to identify the location of these utilities before drilling to prevent any accidents or damage.
6. Lack of Documentation or Professional Advice
- Not consulting with a structural engineer or obtaining the necessary permits and documentation can lead to violations of building codes and potentially compromise the safety of the structure.
Avoiding these mistakes and challenges when drilling holes in floor joists is essential for maintaining the structural integrity and safety of your building. Always consult professionals and follow building codes and guidelines to ensure the best practices are being applied.
Inspection and Maintenance of Drilled Floor Joists
Regular Inspection
Regular inspection of drilled floor joists is essential to ensure their structural integrity and to identify any potential issues early on. It is recommended to inspect the drilled joists at least once a year or after any significant changes in the load-bearing conditions.
During the inspection, look for the following signs of damage or weakness:
- Cracks or splits in the wood
- Excessive deflection or sagging
- Warping or twisting
- Signs of insect infestation or wood rot
- Loose or deteriorated fasteners
- Moisture or water damage
Note: If any of these issues are found during the inspection, it is important to consult with a structural engineer or a qualified professional to evaluate the extent of the damage and recommend appropriate repairs or replacements.
Maintenance Measures
To ensure the longevity and durability of drilled floor joists, the following maintenance measures should be taken:
- Keep the area around the drilled joists clean and free from debris: Dirt, dust, and debris can accumulate in the holes, potentially leading to moisture retention and increased risk of rot. Regularly vacuum or sweep the area to maintain cleanliness.
- Monitor and control moisture levels: Excessive moisture can significantly weaken the wooden floor joists. Ensure proper moisture control in the surrounding areas to prevent moisture-related issues, such as rot and decay. Use dehumidifiers or proper ventilation systems if necessary.
- Inspect and maintain the drainage systems: Good drainage is crucial to prevent water accumulation and moisture damage. Regularly check the gutters, downspouts, and drainage channels for any clogs or blockages that may compromise the drainage system’s effectiveness.
- Apply appropriate treatments: Consider applying wood preservatives or sealants to the drilled joists to protect them from moisture and insect damage. Follow the manufacturer’s instructions and recommendations for application.
Consult Professionals
When it comes to the inspection and maintenance of drilled floor joists, it is always recommended to seek the advice and assistance of professionals. Structural engineers or qualified contractors can provide expert guidance, perform thorough inspections, and recommend the best course of action to ensure the safety and longevity of floor joists.
| Inspection | Maintenance |
|---|---|
| Regularly inspect for cracks, deflection, warping, rot, and other damage | Keep the area clean and debris-free; monitor and control moisture levels |
| Consult professionals for evaluation of damage and repairs | Inspect and maintain drainage systems; apply appropriate treatments |
FAQ:
Is it safe to drill holes in floor joists?
Yes, it can be safe to drill holes in floor joists if proper guidelines and best practices are followed. It is essential to consult a structural engineer or building professional to ensure that the integrity of the joists is not compromised.
What are the best practices for drilling holes in floor joists?
Some best practices for drilling holes in floor joists include avoiding drilling in the middle third of the span, keeping the hole sizes within recommended limits, maintaining the proper distance between the holes and the edges, and using reinforcement techniques like sistering or installing engineered lumber.
What size of holes can be drilled in floor joists?
The size of holes that can be drilled in floor joists depends on various factors such as the size of the joist, the span, and the load it carries. Typically, holes should not exceed one-third of the depth of the joist, and the diameter should not exceed one-sixth of the depth. However, it is always recommended to consult a structural engineer for specific guidelines.
Can I drill holes in floor joists without professional help?
While it is possible to drill holes in floor joists without professional help, it is highly recommended to consult a structural engineer or building professional. They can assess the structural integrity of the joists and provide specific guidelines to ensure the holes do not compromise the strength and safety of the floor system.
What are the consequences of drilling holes in floor joists incorrectly?
Drilling holes incorrectly in floor joists can lead to a range of consequences. It can weaken the structural integrity of the joists, causing sagging floors, cracks, or even structural failure. It can also lead to uneven load distribution, compromising the overall stability and safety of the building.
Are there alternative methods to drilling holes in floor joists?
Yes, there are alternative methods to drilling holes in floor joists. One such method is sistering, where an additional joist is attached alongside the existing joist to provide additional support. Another method is using engineered lumber, such as I-joists or laminated veneer lumber (LVL), which are designed to accommodate holes and provide better load-bearing capabilities.
